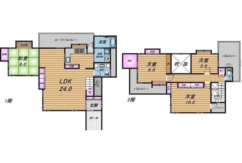
🧡💛新着物件💛🧡 ~南風原町山川 中古戸建~
はじめての方もご安心ください。経験豊富なスタッフが、
物件探しのノウハウや資金計画まで丁寧にアドバイスさせていただきます!

098-940-6565
定休日:水曜日
営業時間:10:00~19:00
はじめての方もご安心ください。経験豊富なスタッフが、
物件探しのノウハウや資金計画まで丁寧にアドバイスさせていただきます!

098-940-6565
定休日:水曜日
営業時間:10:00~19:00

